リフォーム・リノベーション事例

広がりのあるマンション空間へ夫婦ふたり仕様に再生|廿日市市-築22年

ダークオリーブ色の存在感のあるキッチンが印象的なLDK

廿日市市で行われたマンションリフォーム事例をご紹介します。

 

【リフォームのきっかけ】

不便なキッチンをどうにかしたいと、子どもが巣立った頃から考えるように。浴室の老朽化や洗面室のカビに加え、ガスコンロが故障したことでリフォームを決断。

【ストーリー】

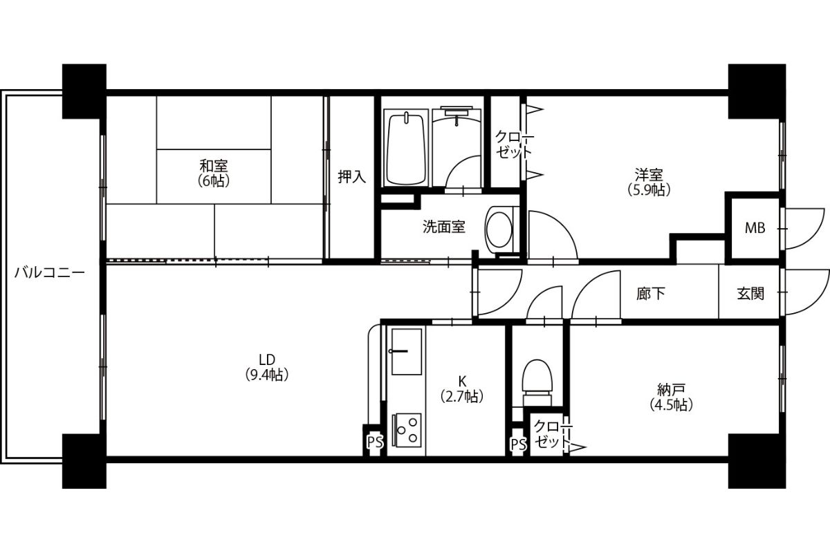
「行くのが苦だった」。奥さまはリフォーム前のキッチンをこう振り返ります。2.7帖の個室型でロの字型の開口部がついたマンションによくあるタイプですが、入り口がLDから遠いなど動線が悪かった上、作業スペースが狭く、窓がなくて熱がこもるため、夏は長くいられないほどの暑さだったそうです。

不便なキッチンを「どうにかしたい」と、2人のお子さんが巣立った2年半ほど前からリフォームを考えていたというSさま。浴室の老朽化や洗面化粧室のカビに加え、ガスコンロが故障したことで決断しました。

奥さまの希望を相談すると、「マンションは制約があるから」と初めから難色を示すリフォーム会社などもある中、リフォーム「ラック」は「時間をかけてすべての要望を聞き、受け止めて、しっかりと対応してくれた」とのこと。リフォームへの希望の光が灯りました。

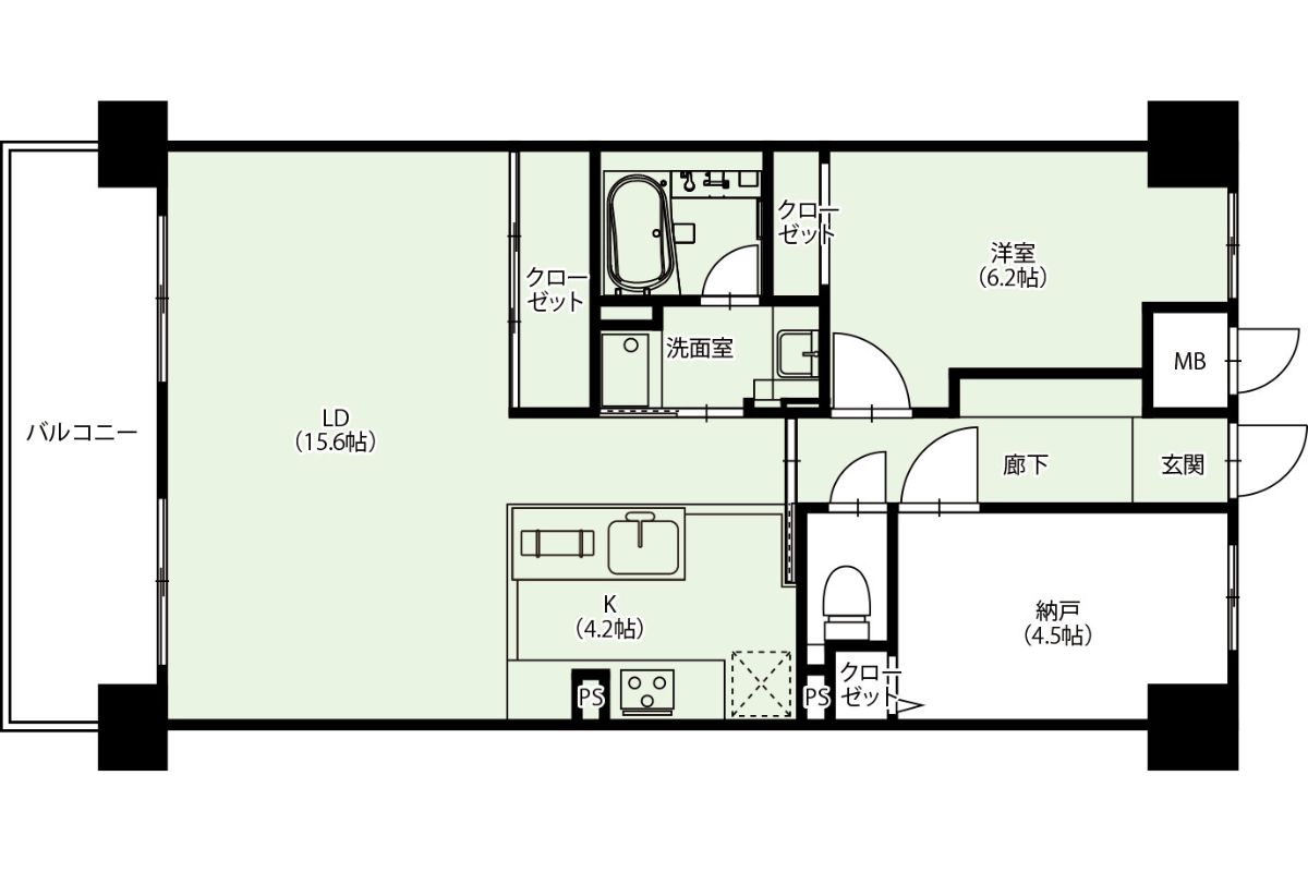
限られた空間をいかに広く使うかがテーマのひとつ。Ⅱ型キッチンを中心に回遊できる動線を作り出すとともに、使っていない6帖の和室の仕切りを取り払ってリビングに変え、19.8帖のLDKを生み出しました。収納も工夫され、押入れを改修したクローゼットは奥行きを10㎝ほど狭め、奥までしっかり使えるようにしたほか、内部の棚なども奥さまの要望に応じて造作。干しておいた洗濯物をそのままポールにかけることもできます。またキッチン脇には奥さまの使い方にぴったり合うカウンター収納を造作するなど、使いよさをオーダーメードで仕上げています。

キッチンを中心にぐるっと廻れる動線は、「料理はもとより、ベランダの花の水やりや掃除も楽ですよ」とのこと。広くなった空間で、ご夫婦でくつろぐ時間が増えるなど、幸せなライフスタイルが始まっています

【リフォームきっかけ】2

仕様・設備

キッチン
リシェル(LIXIL)
ユニットバス
アライズ1316(LIXIL)
リビングドア・クローゼット扉
造作
リビング床
ウール100%カーペット(SINCOL)
リビング壁(一部)
エコカラット(LIXIL)
玄関ホール壁(一部)
エコカラット(LIXIL)
玄関ホール床
ブルズ/直貼りフローリング(ジャパン建材)

図面

BEFORE

BRFORE

AFTER

AFTER

施工会社

リフォーム「ラック」

「デザイン・実用性・価格」の3つのバランスを重視したリフォームを展開。体感し学習できるショールームや、トラブル時にはすぐに駆けつけられる地域密着型の店舗展開。 さらに設計・施工・管理の自社一貫体制で満足度が高いと評判です。

リフォーム会社探しに
お悩みなら

会社選びの悩みを解消!あなたに ピッタリ のリフォーム会社をご紹介!

広島リフォーム相談カウンター